Spacious Duplex Apartment
Base Information
Land Information
Description
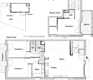
Grand Selve sector in Toulouse, you will be the first privileged occupant of this spacious 91.38 sq m (980 sq ft) 3-bedroom duplex apartment on the ground floor with a 192 sq m (2,058 sq ft) outdoor space. Large living room with open-plan fitted kitchen facing south. Two bedrooms opening onto a terrace and a master suite with its own shower room and rooftop terrace. Bathroom, WC.
One double parking space in the basement.
The apartment is equipped with the latest home automation technology and meets RT 2012 thermal regulations.
Quiet area in a dynamic and very pleasant town, with all amenities nearby.
Small residence of 15 units surrounded by beautiful landscaped gardens.
All amenities close by!
Don't miss this opportunity!
Property subject to co-ownership regulations.
Number of units: 44.
Apologies for the triangle overlay on the images, this particular agent is in a very competitive sector and wishes to protect their images from being copied. If you want to see clean images of this listing simply Make an Enquiry and we will respond.
The Department of Haute-Garonne, despite its ever growing population, still boasts beautiful scenery of undulating hills and valleys.
The region as a whole is a popular choice for an active holiday and the Haute-Garonne is ideal for mountainous activities including biking and walking and of course skiing during the winter. The department has four ski resorts.
If religious buildings are of some interest then the Haute-Garonne will not disappoint. Sites including the Toulouse basilica, the Saint Bertrand-de-Comminges cathedral and the Saint-Just basilica of Valcabrère are on the door-step.
Gascony plays a big part in the department and dishes are based on goose fat or oil flavoured with garlic, shallots, and spices. Goose and duck farms produce foie gras, which is then sold fresh or made into pate and terrines. Nothing is wasted, and the rest of the bird is made into confits, preserves used to make stew and soups.
Life in the mountain villages and farms of the Pyrenees has remained largely unchanged. Their southern climate means that it can be warm and sunny from as early as February. Roads are good and generally well sign-posted, although snow lies on the higher peaks until May and some of the highest passes may be closed. The climate is a cross between Atlantic Maritime and Mediterranean.
Toulouse is France’s fourth biggest city and has a very lively atmosphere with a strong student presence. Stroll around the historic centre, walking alongside the Garonne and the Canal du Midi, or stop in one of the many pavement cafés for a delicious cup of coffee.
We at Cle France specialise in Property for sale in France through our network of Agents and French Registered High Street Estate Agents. We have sold thousands of houses for sale in France over the years and have helped many find and buy their dream home in France.
We can also help you with everything to do with buying a house in France including getting a mortgage, organising currency exchange, renovation advice, property surveys, planning permission, French translation, opening a bank account and everything to do with French property sales.
All our prices are quoted as FAI (agency fees included) unless otherwise stated and ’notaire’ fees are around 7% (on average) but feel free to ask us for an exact amount on any particular French property for sale you are interested in.
Indeed please feel free to use the ’MAKE AN ENQUIRY’ tab above to ask us any questions you have about buying a property in France. Our UK based enquiry office and staff will guide you through the entire buying process step by step from your first contact right up to taking ownership and beyond, all free of charge.
So when you buy through Clé France you can be confident that you are paying no more than the standard commission rates you would pay anyway, but you have the added benefit of a bi-lingual support team.
For everything you need to know about French property visit www.clefrance.co.uk
AXL-31530
Property document
